tel: 780-963-4004

Agent Photo

»real estate from darcy torhjelm

 
Data Last Updated April 28, 2026, 5:10 pm

McLaughlin_SPGR 2 Storey
Bedrooms 2 Bathrooms 2 Parking 2
Courtesy of Carson Beier Royal LePage Noralta Real Estate

MLS® #:  E4483126    
Address:  67 50 MCLAUGHLIN Drive
Size: 1,141 sq. ft.     Days On Website:  ACCESS Days on Website
$369,900
Google Maps Mortgage Calculator
Neighbourhood Tour Printable Version Schedule a Showing
Email to a Friend
For viewing call 780-963-4004
Contact Darcy

Descriptions:

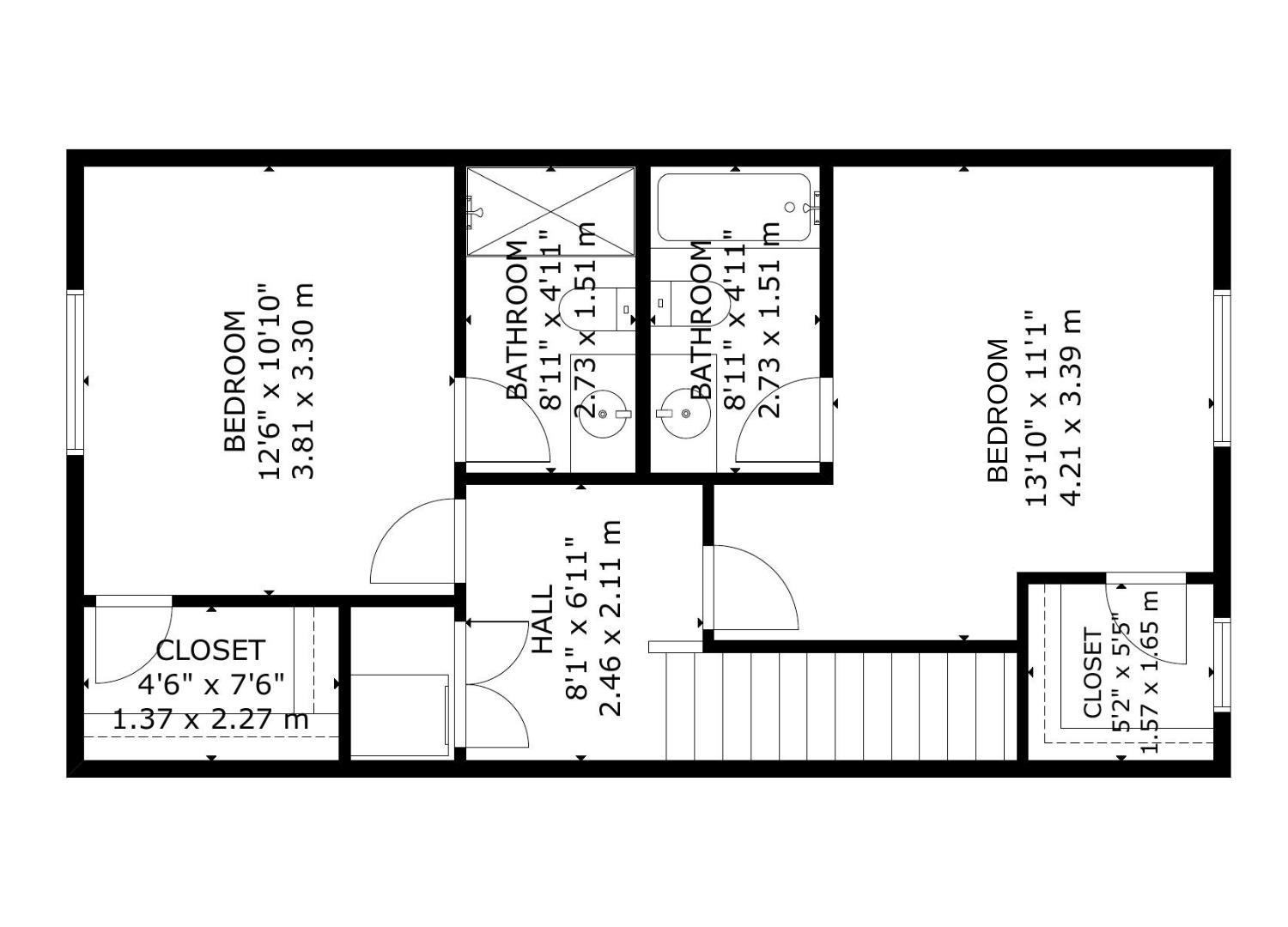
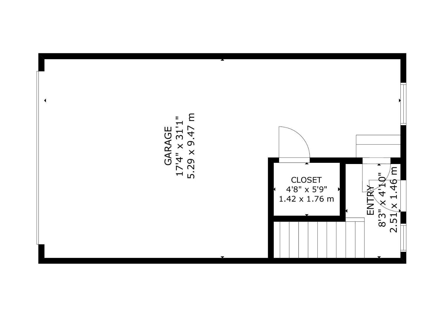
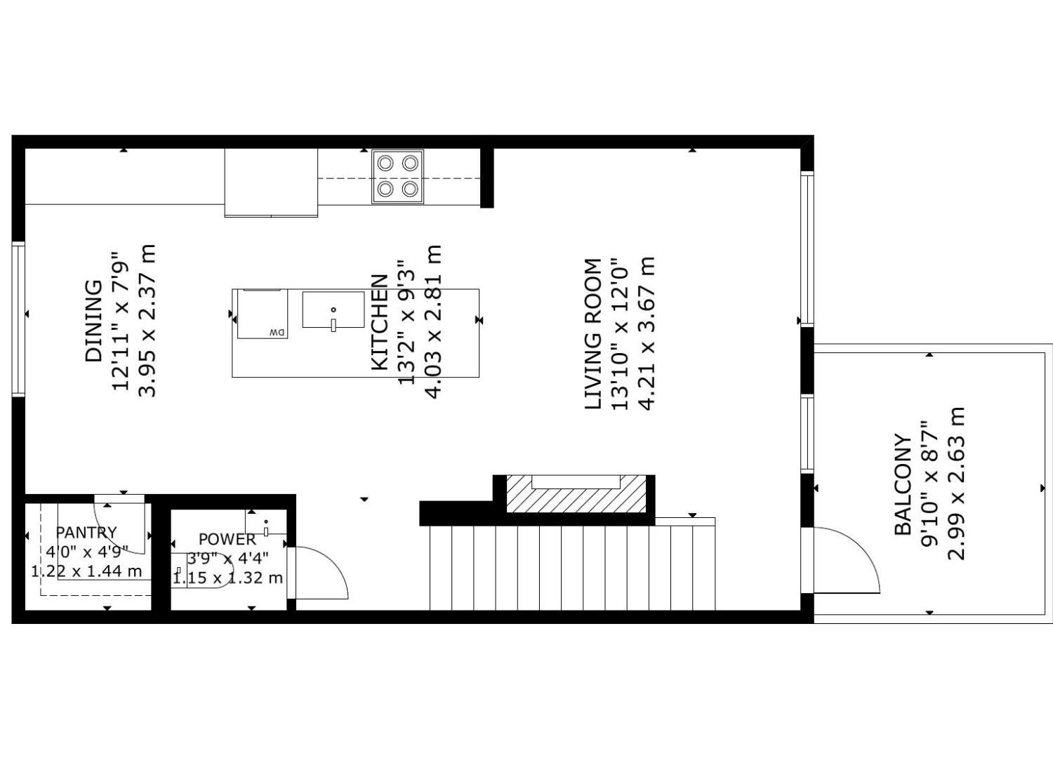
Step into this former award-winning show home by StreetSide Developments. This innovative 3-storey design features 2 luxurious primary suites, each with a walk-in closet and private ensuite. The stunning kitchen boasts quartz countertops, upgraded cabinetry, a large island with flush eating bar and premium stainless steel appliances. The bright, open-concept second level includes a spacious living room with fireplace, powder room, walk-in pantry and access to the vinyl/aluminum balcony. The dining area features built-in cabinetry with a bar fridge, perfect for entertaining. Enjoy luxury vinyl plank flooring throughout, plus convenient top-floor laundry. The heated double garage includes an extra tandem bay (8.6' x 11.8'), ideal for storage or hobbies. With over $75,000 in upgrades, including central A/C, feature walls, fireplace, custom tile, blinds and more, this stylish, move-in-ready home blends comfort, function, and modern flair. A must-see!

Includes: Air Conditioning-Central, Dishwasher-Built-In, Dryer, Garage Opener, Hood Fan, Oven-Microwave, Refrigerator, Stove-Electric, Washer, Window Coverings, Wine/Beverage Cooler
Site Influences:
Back Lane, Golf Nearby, Picnic Area, Playground Nearby, Public Swimming Pool, Schools, Shopping Nearby
Legal Description:
ACCESS Legal Description
Location & Listing Info:
Neighbourhood: McLaughlin_SPGR
Zone: Zone 91
Property Info:
Property Type: Townhouse
Home Style: 2 Storey
Year Built: 2020
Total Floor Area: 1,141 sq. ft.
Front Exposure: Southwest
Exterior:
Exterior: Back Lane, Golf Nearby, Picnic Area, Playground Nearby, Public Swimming Pool, Schools, Shopping Nearby
Front Exposure: Southwest
Roof: Asphalt Shingles
Financial & Possession:
Monthly Fee: ACCESS Monthly Fee
Rooms:
Total Bedrooms: 2  (Bedrooms Above: 2)
 
Bathrooms:
Bathrooms: 2
 
Rooms Above: 7
Additional Info:
Heating: Y
Basement: Full, Finished
Basement Type: Full, Finished
Floor Finish: Vinyl Plank
Parking: Double Garage Attached, Heated, Insulated, Over Sized
JOIN NOW to access ALL LISTINGS.
Access includes addresses, days on website and full comments.
> Property History > Days On Website > Previous Price
Schedule A Showing
Free Evaluation
Contact Darcy
Property History
For viewing call 780-963-4004
Contact Darcy Torhjelm -
100-72 Boulder BO, Stony Plain, Alberta, T7Z 1V7
Required Field
Copyright 2026 by the REALTORS® Association of Edmonton. All Rights Reserved. Data is deemed reliable but is not guaranteed accurate by the REALTORS® Association of Edmonton. Data was last updated April 28, 2026, 5:10 pm.
The data included on this website is deemed to be reliable, but is not guaranteed to be accurate by the REALTORS® Association of Edmonton.

MLS®, Multiple Listing Service®, and the associated logos are all registered certification marks owned by CREA and are used to identify real estate services provided by brokers and salespersons who are members of CREA. The trademarks REALTOR®, REALTORS® and the REALTOR® logo are controlled by The Canadian Real Estate Association (CREA) and identify real estate professionals who are members of CREA. Used under license.